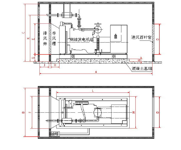
柴油小蝌蚪污视频APP组的排烟管尺寸由产品决定,因为不同的品牌,机组的排烟量不一样。小则50mm,大则几百mm。首段排烟管的尺寸是根据机组排烟出口法兰的尺寸 来决定的。并且排烟管路的弯头也影响排烟管的尺寸。弯头越多,排烟阻力越大,管径就得增加。经过3个90度弯头的时候,管径增加 25.4mm。排烟管的长度和方向改变次数一定要减至zui小。在设备选型和小蝌蚪污视频APP机房的设计和布置时,要注意以下因素。 1、柴油小蝌蚪污视频APP组排烟管的布置 1)必须通过波纹管与机组排烟出口相连接以吸收热膨胀、位移和振动。 2)消声器置于机房内时,根据其尺寸、重量可采用从地面支撑的办法。 3)在烟管改变方向的部分,建议安装膨胀节,以抵消柴油小蝌蚪污视频APP组运行时管道的热膨胀。 4)90度弯头的内弯半径应为管径的3倍。 5)第一级消音器尽可能靠近机组。 6)当管路较长时,建议在末端安装一后级消声器。 7)排烟终端出口不能直对易燃物质或建筑物。 8)机组排烟出口不得承受重压,所有钢性管路应借助建筑物或钢结构得以支撑固定。 2、柴油小蝌蚪污视频APP组烟管的安装 1)为防止冷凝物倒流入机组,平置的排烟管应有坡度,低端远离发动机;在消声器及其它任何有冷凝水滴流的管路部分,如烟管垂直转向处,应设置排水口。 2)当烟管穿过易燃屋顶、墙壁或分隔物时,应加以隔热套筒及壁外套板。 3)在条件允许下的情况下,尽可能将绝大部分烟管布置在机房外以减少辐射热;室内的烟管应全部加装隔热护套。如果受安装条件限制,须将消声器及其余的管路皆置于室内时,应用50毫米厚的高密度隔热材料外加铝质护套将整个管路包扎隔热。 4)管路支撑固定时应允许热膨胀的发生; 5)烟管的终端应能避免雨水的滴落。可将烟管水平面伸出,出口修料或安装防雨帽。 3、柴油小蝌蚪污视频APP组烟管安装注意事项: 1)每台柴油机的排烟管应单独引出室外,宜架空敷设,也可敷设在地沟中。排烟引管和消声器应单独设置支撑,不得直接支撑在柴油机排烟总管或固定在柴油机其他部位上。排烟引管与排烟总管之间采用柔性连接。排烟管上的托架必须容许管子伸缩或是采用滚柱型托架,而短的柔性管或膨胀式波纹管应介于两个固定架之间的长管道,并组合为一体。 2)排烟引管长度及与管径的配套要求,应根据厂家提供的数据确定。当排烟管需穿过墙壁时,应配置保护套。伸出室外沿墙垂直敷设,其管出口端应加防雨帽或切成320~450的斜角。所有排烟管道的壁厚应不小于3mm。 3)排烟管的走向应能防火,伸出室外部分宜设0.3%~0.5%的坡度。坡向室外,便于油烟凝结液及冷凝水排出室外。水平管较长时在zui低点安装排污阀。 4)机房内的排烟管采用架空敷设时,室内部分应设隔热保护层且距地面2米以下部分隔热层厚度不应小于60毫米;当排烟管道架空敷设在燃油管下方或地沟敷设需穿越燃油管时,还应考虑安全措施。 5)排烟管较长时,应采用自然补偿段,若无条件,应装设补偿器。 6)排烟引管不宜拐弯过多,拐弯弯度应大于900,一般拐弯不应超过三次,否则会导致柴油发动机排烟不畅,影响柴油发动机组的功率输出

贵阳发动机 贵阳小蝌蚪污视频APP 贵阳小蝌蚪污视频APP组 贵州小蝌蚪污视频APP组控制系统,贵阳双电源转换系统 贵阳输配电 贵阳高低压控制设备,贵阳小蝌蚪污视频APP组控制器 贵阳小蝌蚪污视频APP组控制系统 贵州发动机销售,贵州小蝌蚪污视频APP租赁 贵州小蝌蚪污视频APP组安装 贵州双电源转换系统,贵州输配电维修 贵州高低压控制设备保养 贵州小蝌蚪污视频APP组控制器维修文章和图片来源于网络,如有侵权请告知删除!